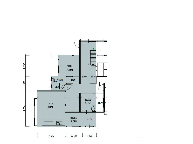
家の水廻り全てと、玄関廻りを改装しました。以前はかなり廊下の面積が広い間取りでしたが、改装の際、廊下スペースを減らすことで、ダイニングキッチンをLDKへと変身させました。また水廻りの位置を変え、空いたスペースに、食材をストックできる収納庫を設けました。動線に無駄のない、暮らしやすい空間に生まれ変わったと思います。
無駄のない空間
株式会社 山下ホーム 〒937-0017 富山県魚津市江口567番1相談・展示場見学や無料カタログ請求などお気軽にご相談ください。